Продажа квартиры, Москва, ул. Тагильская, 4а, метро Бульвар Рокоссовского
Бульвар Рокоссовского, 20 мин. пешком
0 Р за м2
Код предложения
101280906
Подробную информацию по этому предложению вам предоставит эксперт ЕГСН
Зубаренкова Галина Константиновна
Возможна ипотека
Альтернатива
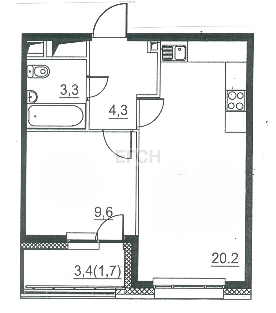
Продается 2-комнатная квартира
24 этаж, 24-этажный монолитный дом
24 этаж, 24-этажный монолитный дом
37.8 м2 общая9 м2 кухня
В квартире:
1 лоджия
1 совмещенный санузел
Окна во двор
Косметический ремонт
Отличное состояние
В доме:
2 пассажирских лифта
2 грузовых лифта
Парковка: подземная
Видовая двухкомнатная квартира в ЖК Сиреневый парк. Окна выходят во двор. Отличное расположение: в 20 минутах ходьбы от метро и в 5 минутах от парка Лосиный остров. Отдельная спальня и кухня-гостиная, большая лоджия. Отделка от Застройщика в скандинавском стиле. В доме консьерж и видеонаблюдение, подземный паркинг. Рядом магазины, школа, детский сад, поликлиники. Один взрослый собственник, без долгов и обременений.
Подробную информацию уточняйте по телефону8 (495) 225-25-25 , Код предложения: 101280906.
Подробную информацию уточняйте по телефону
